MG电子

全国服务热线 说话选择 :EN

027-87253366 027-87253338

创新成就Innovation results
location_home首页 > 创新成就 > 扩孔自锁锚固(专利163项)扩孔自锁锚固(专利163项)

工业与民用构筑

1 老河口水泥筒仓爆仓应急处置工程

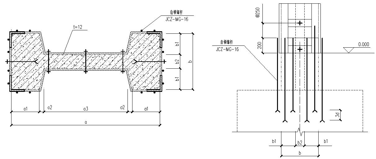
     该项?位于湖北省老河口?泥?内 ,厂内?料均化库建成于2009年  ?馊萘课2万吨  。该库于2009年正式投产 ,为?座单体圆形钢筋混凝?筒仓结构  。该?料均化库库体表壁在2021年8?22?忽然呈显炱洞败坏 ,钢筋袒露 ,粉碎?积达到56m2 ,库体因内部压强突变 ,库顶板发?严沉的内凹变形 ,与钢?房相衔接钢构件受拉发?严沉变形以及错位  。应急处置?式中蕴含包钢板加固 ,包钢加固中采??锁锚杆代替化学植筋后锚固  。

 

首页 - MG电子官方网站 图1 老河口水泥筒仓爆仓应急处置

 

2 安庆皖能垃圾发电??房加固刷新工程

      本?程为安庆皖能?活垃圾点火发电改建4号炉项??期垃圾?房加固刷新设计?程  。中科环保电?有限公司?区由安庆皖能中科环保电?有限公司掌管建设 ,??期垃圾发电?2011年投产以来 ,已经?产运?近8年  。在?期3号炉项?刚刚投产的情况下 ,两全思考3、4号炉建设 ,调整?艺流程及安插 ,对?期?房进?检测鉴定和加固设计  。

      经刷新加固设计 ,垃圾贮坑的内壁厚需加厚250mm ,为了确保内壁新?混凝?的衔接永远性 ,采?了?锁锚杆包办化学植筋的?案  。

 

首页 - MG电子官方网站

 

 

首页 - MG电子官方网站 

 图2 安庆皖能垃圾发电??房加固刷新

 

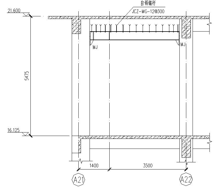
3 东方电机大电机房加固工程

     东?电机?电机?房为单层多跨钢筋混凝?排架结构?房 ,1959年开?建设 ,1964年、1972年、1988年别离再扩建 ,其中1跨为钢结构 ,其余各跨均为钢筋混凝?结构 ,排架柱均为混凝??字形截?柱 ,柱距均为6m  。

     ?房?建成后未进?结构刷新 ,亦未扭转过使?职能 ,?直作为?产?房使?  。?房吊?在使?过程中进?了更换 ,现实使?吨位较原设计有所提?  。

     经刷新加固设计 ,对经升级刷新后的屋?结构、吊?梁、柱?进?了通例加固  。原设计柱加固??房基础顶?处(即室内地坪标?以下) ,由于地?处有设备影响开挖 ,?法执行  。故调整设计?案:在不破除地坪前提下 ,??锁锚杆从地坪打孔?基础顶?以下锚固深度 ,包办地?以下原加?截?受拉钢筋  。

 

 首页 - MG电子官方网站

  首页 - MG电子官方网站

 

 图3 东方电机大电机房加固

 

4 湖北移动办公大楼刷新加固工程

     本工程于2012年执行  。湖北移动通讯办公大楼原结构为通常办公楼 ,楼面使用荷载为2.5kN/m2 ,刷新后部门楼面使用荷载需提高至12kN/m2 ,荷载等级提高幅度较大 ,部门梁、板承载力严沉不满足要求 ,需增大梁、板截面尺寸  。若选取用通例混凝土增大截面的步骤 ,一来增长的厚度加大、自沉较大 ,导致原结构基础和框架柱必要加固;二来混凝土增大截面加固施工周期长 ,现场施工功夫不允许  。故本项目选取表粘型钢加大截面的方式大幅度提高梁、板的承载力  。加固处置面积为5000平方米 ,用时仅38天  。

       粘接型钢加固过程使??锁锚杆代替化学植筋进?混凝?后锚固 ,解决?期使?耐久性的问题  。

 

首页 - MG电子官方网站 

 

 首页 - MG电子官方网站 

图4 湖北移动办公大楼刷新加固

 

5 长沙宜家购物中心加固工程

     ?沙宜家购物中?项?因新增防?卷帘造成的楼?荷载增长 ,经加固设计 ,对混凝?板厚不满?设计要求处采?板下新增型钢结构加固处置  。

     新增型钢采??锁锚杆代替化学植筋进?后锚固处置 ,?锁锚杆植?深度浅、锚固靠得住 ,同时解决?期使?耐久性的问题  。

 

首页 - MG电子官方网站 

 

首页 - MG电子官方网站  

图5 长沙宜家购物中心加固

 

6 武汉新业大厦阳台刷新工程

      武汉新业?厦位于江汉区汉??年路185号 ,是由湖北省烟草公司规划、开发的?区  。打算将阳台悬挑板由原1.2m增宽?1.8m ,采??锁锚杆代替化学植筋进?后锚固 ,锚固更靠得住 ,解决?期使?耐久性的问题  。

 

 首页 - MG电子官方网站  首页 - MG电子官方网站

图6 武汉新业大厦阳台刷新

 

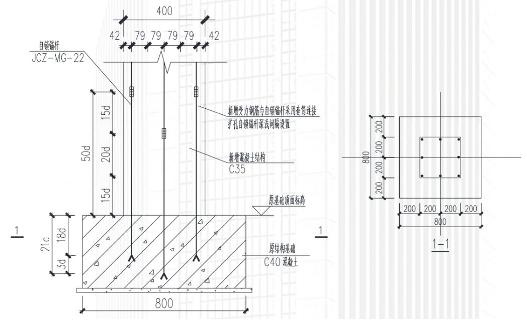
7 武汉弘毅大酒店基础加固工程

     本?程为武汉?学弘毅?酒店基础加固?程 ,暴露基础钢筋锈蚀 ,切除原有钢筋 ,沉新植筋 ,本?案采??锁锚杆代替化学植筋 ,克服了化学植筋耐久机能差、安全性低、不能做到与原结构同寿命的弊端  。

     由于本项?是采??锁锚杆代替化学植筋 ,锚固?度是依照等强代换的准则进?推算 ,并思考群锚效应 ,将群锚领域内的总?积等效为单?锚杆的?积 ,再依照有关规范划定推算根基锚固深度及锚固承载?  。

 

首页 - MG电子官方网站   图7 武汉弘毅大酒店基础

 

8 湖北工业大学实训大楼刷新工程

     湖北工业大学实训大楼于2006年建成 ,主体为一栋六层框架结构房屋 ,底部设有架空层  。房屋整体平面呈矩形 ,总长116.400m ,宽78.000m ,总构筑面积43618.000㎡  。架空层层高为3.2m ,一~六层层高均为4.2m  。构筑总高为28.4m ,该房屋楼(屋)面板均为钢筋混凝土现浇板 ,屋面为上人平屋面  。其中第5~6层及屋面层结构1-9/A-J轴区域及26-31/J-P轴区域为大悬挑有粘结后张法预应力混凝土梁结构 ,使用至今该区域表部悬挑区域填充墙出现斜向开裂及墙体与梁接壤处水平开裂 ,表墙瓷砖掉落 ,渗水等病害景象  。现需对开裂墙体及梁进行注缝胶加固处置 ,对部门区域进行包钢加固及部门病害建复  。

 

首页 - MG电子官方网站

 

 首页 - MG电子官方网站

图8 湖北工业大学实训大楼刷新

 

9 武汉科技大学天佑医院加固工程

      本工程为武汉科技大学从属天佑医院应对沉大突发公共卫滋事务综合能力提升工程 ,其中习染楼为三层砖混结构(部门四层) ,佑安楼为五层砖混结构 ,并设有一层地下室  。别离建于上世纪70年代与80年代 ,因职能及设备刷新需要 ,需增长多处墙体开洞 ,增长机房及屋面设备承沉 ,所以需对原结构进行加固  。

 

首页 - MG电子官方网站

 

 

首页 - MG电子官方网站

图9 武汉科技大学天佑医院加固工程

 

 

 

 

 

 

 

 

 

 

【网站地图】