
全国服务热线 说话选择 :EN

武大MG电子结构股份有限公司
WUDAJUCHENG STRUCTURE CO.,LTD
一、合用领域
建(构)筑物顶升、纠偏重要解决由于地基沉降、无意荷载、工程变乱等原因导致建(构)筑物结构产生倾斜的情况,传统的纠偏方式重要有:迫降法、顶升发、综合法等。其中迫降法和综合法受限于场地前提和构筑物体型限度,且存在诸多不确定成分,在现实工程当选取顶升法进行建(构)物顶升纠偏为较通例和合用的步骤。
二、设计凭据
《构筑结构荷载规范》(GB5009-2012)
《构筑结构靠得住度设计统一尺度》(GBJ50068-2001)
《混凝土结构设计规范》(GB50010-2010)
《混凝土结构加固设计规范》(GB 50367-2013)
《混凝土结构后锚固技术规程》(JGJ 145-2013)
《构筑结构加固工程施工质量验收规范》(GB50550-2010)
《寂仔构筑地基基础加固技术规范》(JGJ123-2012)
〖杆静压桩技术规程》(YBJ227-91)
《构筑地基基础设计规范》(GB50007-2011)
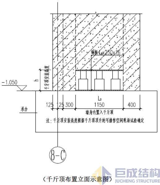
三、加固大样
设计范例:
龙马新居纠偏加固施工图 下载